Loading...

- Paris 18 - RUE DURANTIN

255 000 €Honoraires à la charge du vendeur
PARIS 18ème
1 pièce(s)
21m²
- Description du bien
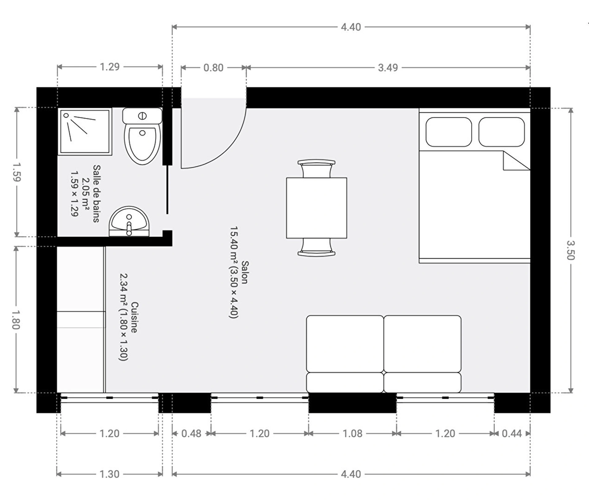
L'agence Fredélion immobilier Paris 10 Louis Blanc vous propose en exclusivité ce charmant studio de 20,67m²., situé au coeur des Abbesses très lumineux au quatrième étage sans ascenseur
Il se compose comme suit : une belle pièce à vivre avec cuisine ouverte équipée et aménagée, une salle de douches avec WC et une cave en sous-sol.
Vous profiterez de ce quartier animé proche transports et tout commerces !
Copropriété de 22 lots - dont 13 lots habitation. (Pas de procédure en cours).

Charges annuelles : 1680 euros.
Ce bien fait parti d'une co-propriété de 22 lots. Les charges sont de 1680€ par an. Pas de procédure en cours.
DPE_ passoire énergétique logement extrêmement performant logement extrêmement peu performant consommation (énergie primaire) 379 kWh/m²/an émissions* 12 kgCO2/m²/an
DPE_ * Dont émissions de gaz à effet de serre peu d'émissions de CO2 émissions de CO2 très importantes 12 kgCO2/m²/an
- FREDéLION, c'est...
Chiffre
15
années
d'expertises
Chiffre
3313
avis clients
(MeilleursAgents, Google my business et Opinion System)
Chiffre
106
collaborateurs
à votre service
Votre agence
204 rue du Faubourg Saint-Martin, 75010 Paris
01 85 09 01 09
Contactez-nous
Pour ce bien
*champs requis
Loading...
Les informations recueillies sur ce formulaire sont enregistrées dans un fichier informatisé par Frédélion Saint-Martin Canal pour gérer votre demande de contact. Elles sont conservées pour la durée nécessaire à la gestion de la relation client dans le respect des prescriptions légales applicables et sont destinées au responsable de la publication de ce site : Frédélion Saint-Martin Canal.
Conformément à la loi « informatique et libertés », vous pouvez exercer votre droit d'accès aux données vous concernant et les faire rectifier en contactant Frédélion Saint-Martin Canal louisblanc@fredelion.com ou en utilisant ce formulaire. Nous vous informons de l’existence de la liste d'opposition au démarchage téléphonique « Bloctel », sur laquelle vous pouvez vous inscrire ici : https://www.bloctel.gouv.fr/
FREDELION PARIS 10 CANAL SAINT-MARTIN - ALEPH TRANSACTIONS SAS, société au capital de 33300.00 euros. Siège social : 28 bd Malesherbes 75008 PARIS. N° de TVA intracommunautaire : FR52882080054. RCS PARIS immatriculé(e) 882080054.
Carte T : CPI75012021000000432. Date de délivrance : 0210-11-01T16:00:03.000000Z. Lieu de délivrance : Paris - IDF. Caisse de garantie financière : CEGC. N° de caisse de garantie : 29948TRA201. Adresse de la caisse de garantie : 59 AVENUE Pierre Mendès France 75013 PARIS. Montant de la garantie financière : 839900 euros.
Conformément aux articles L611-1 et suivants et R612-1 et suivants du Code de la consommation, le consommateur est informé qu’il a la possibilité de saisir un ou notre médiateur de la consommation, à savoir situé
Barème d'honoraires